Ваш регион:

Доставка и оплата

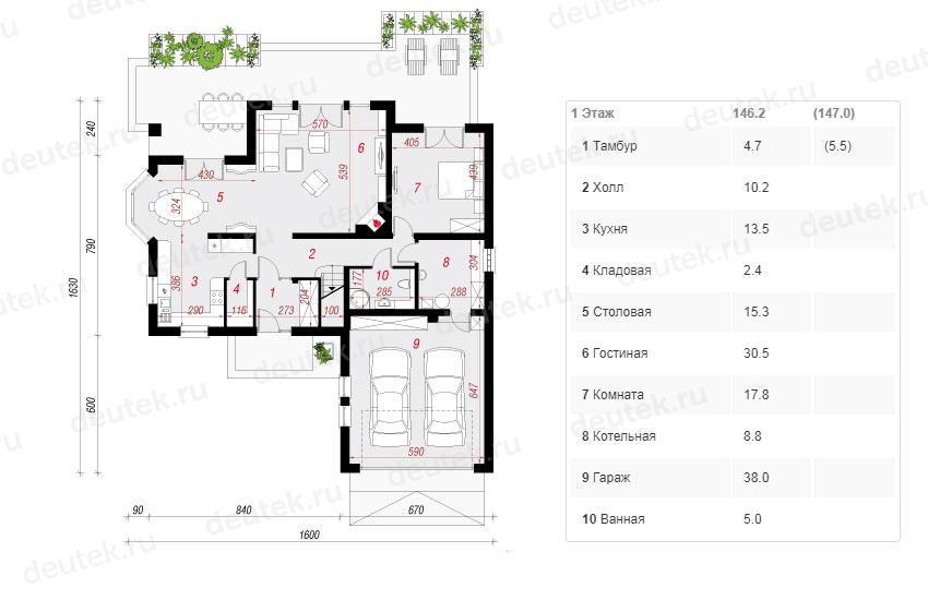
Проект двухэтажного дома из керамических блоков с двухместным гаражом DTN100081

Добавить в избранное

Общая площадь: 299 м2
Габариты дома: 16.00 x 16.30 м
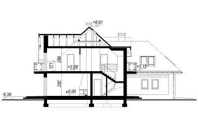
Этажность: 1+ Мансардный
Спальни: 4
Фундамент: ленточный ж/б
Материал стен: пустотелый керамический блок (или газобетон) 25 см, минералная вата 15 см, штукатурка
Перекрытия: монолитные ж/б
Крыша: мансардная
Кровля: керамическая черепица
Фасад: штукатурка, камень
Стиль: Европейский
Навес для 2 автомобилей нет
Гараж (4 места) нет
Кинотеатр нет
Навес для автомобиля нет
Подвал нет
Бильярдная нет
Библиотека нет
Беседка нет
Гараж (3 места) нет
Баня нет
Гараж (1 место) нет
Гараж (2 места) есть
Навес нет
Терраса на 1-м этаже есть
Терраса на 2-м этаже нет
Терраса на крыше нет
Веранда нет
Зимний сад нет
Второй свет нет
Бассейн нет
Сауна нет
Тренажерный зал нет
Эркер есть
Кабинет нет
Балкон есть
Большие окна есть
Элитный есть
Угловой есть
Для узкого участка нет
Квадратный нет
Погреб нет

Архитекрутный раздел

Архитектурный раздел проекта дома Архитектурный раздел проекта дома Архитектурный раздел проекта дома Архитектурный раздел проекта дома Архитектурный раздел проекта дома Архитектурный раздел проекта дома Архитектурный раздел проекта дома Архитектурный раздел проекта дома Архитектурный раздел проекта коттеджа Архитектурный раздел проекта коттеджа Архитектурный раздел проекта коттеджа Архитектурный раздел проекта коттеджа Архитектурный раздел проекта коттеджа Архитектурный раздел проекта коттеджа Архитектурный раздел проекта коттеджа Архитектурный раздел проекта коттеджа Архитектурный раздел проекта коттеджа Архитектурный раздел проекта коттеджа Архитектурный раздел проекта коттеджа Архитектурный раздел проекта коттеджа Архитектурный раздел проекта коттеджа Архитектурный раздел проекта коттеджа Архитектурный раздел проекта коттеджа Архитектурный раздел проекта коттеджа



Конструктивный раздел

Конструктивный раздел проекта коттеджа Конструктивный раздел проекта коттеджа Конструктивный раздел проекта коттеджа Конструктивный раздел проекта коттеджа Конструктивный раздел проекта коттеджа Конструктивный раздел проекта коттеджа Конструктивный раздел проекта коттеджа Конструктивный раздел проекта коттеджа Конструктивный раздел проекта коттеджа Конструктивный раздел проекта дома Конструктивный раздел проекта дома Конструктивный раздел проекта дома Конструктивный раздел проекта дома Конструктивный раздел проекта дома Конструктивный раздел проекта дома Конструктивный раздел проекта дома

Варианты оплаты

  • Безналичный расчет на р/с компании
  • Перевод на карту Сбербанка РФ (выписывается приходный кассовый ордер)
  • Наличный расчет в офисе компании (выписывается приходный кассовый ордер)

Если проект приобретается без изменений, то оплата производится в размере 100% стоимости проекта.

Если проект приобретается с изменениями, то оплата производится в размере 100% стоимости проекта и первого авансового платежа за эскизное решение, которое составляет 50% от общей стоимости всех вносимых изменений в проект. Оставшийся второй авансовый платеж в размере 50% вносится после согласования с вами эскизного решения. После оплаты второго авансового платежа и согласования эскиза мы приступаем к проработке архитектурно-строительной документации. Срок подготовки документации 15 рабочих дней с момента оплаты второго авансового платежа. Данный срок может быть уменьшен или увеличен, в зависимости от сезонности.

Пример:
Если проект стоит 30.000 руб, а стоимость его доработок оценена в 10.000 руб, то ваш первый авансовый платеж составит 35.000 руб.

Доставка

Хотите изменить проект? Узнать стоимость
с доработками

Что может быть изменено?

  • Конструкция фундамента (необходим отчет о инженерно-геологических изысканиях)
  • Внешние габариты
  • Планировочные решения
  • Размеры и расположение окон, дверей и проемов
  • Уклон кровли и навесов
  • Высота потолков
  • Тип перекрытий
  • Материал стен, кровли и фасада
  • Добавление/удаление цокольного этажа или подвального
  • Добавление/удаление гаража, террас, крылец, бассейнов, саун, эркеров и пр.
Проект бесплатно, если дом строим мы! Узнать стоимость

Как сэкономить на строительстве из блоков?

Мы не продвигаем материалы, технологии и производителей!

Все наши рекомендации предназначены для тех, кто только хочет начинать строительство дома и стремится понять ценообразование при применении тех или иных технологий и материалов.

Применение фундамента сваи с ростверком.

Большая часть наших проектов содержит монолитную плиту, которая является универсальным фундаментом и подходит под большинство типов грунта. Буронабивные сваи с монолитной лентой ростверка являются самым доступным решением, но чтобы реализовать это решение необходимо предоставить отчет геологии, который вы можете заказать у нас или в любой другой компании. Данный тип фундамента иногда не может быть применен к слишком большим и тяжелым домам. Экономия, по сравнению с плитой, достигает до 40%.

Пирог наружных стен – газобетон и штукатурка.

Есть огромное заблуждение в том, что на фактическую стоимость строительства дома влияет стеновой материал. Это не верно! Коробка дома – это не большой процент от всех расходов на дом. Самые большие статьи расходов – это фундамент и крыша, но даже на пироге стен можно сэкономить, если выбрать в качестве стенового материала газобетон и отделку фасада штукатуркой. Для примера, стены из газобетона дешевле чем из керамики на 20%, а отделка штукатуркой на 30-35% дешевле чем кирпичом, но и этот процент может быть уменьшен из-за выбора дорогих брендов.

Металлочерепица в качестве кровельного материала.

Если сравнивать металлочерепицу с мягкой кровлей (гибкая черепица), то при сравнении различных производителей выяснится, что металлочерепица, как отдельный материал, будет иногда немного дороже или равна по стоимости мягкой. Складывается впечатление, что если нет разницы или она мала, то стоит выбрать мягкую кровлю. По факту, крыша из гибкой черепицы будет на 20% дороже чем из металлочерепицы, т.к. для данного типа кровельного пирога применяется OSB фанера, подкладочный ковер (доп. гидроизоляция) и прочие комплектующие.

Рекомендации проектов близких по площади

DT0229

307 м2

Эт.: 2  | 
Спален: 4

Габариты: 14.80 х 16.50 м

40.000 руб. Купить проект
Добавить в избранное

DT0231

291 м2

Эт.: 2  | 
Спален: 5

Габариты: 16.20 х 17.96 м

40.000 руб. Купить проект
Добавить в избранное

DT0233

308 м2

Эт.: 2+Ц  | 
Спален: 5

Габариты: 11.50 х 10.00 м

42.000 руб. Купить проект
Добавить в избранное

DT0242

328 м2

Эт.: 3  | 
Спален: 5

Габариты: 6.40 х 19.80 м

45.000 руб. Купить проект
Добавить в избранное

DT0247

304 м2

Эт.: 2  | 
Спален: 3

Габариты: 10.50 х 12.00 м

32.000 руб. Купить проект
Добавить в избранное

DT0257

301 м2

Эт.: 2+М  | 
Спален: 4

Габариты: 13.30 х 9.50 м

36.000 руб. Купить проект
Добавить в избранное

Опции: